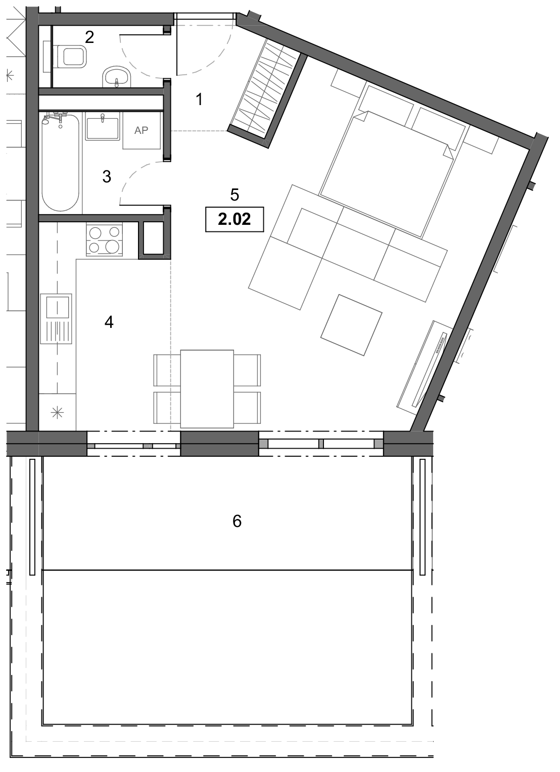
| Počet izieb | 1 |
| Poschodie | 2NP |
| Plocha bytu | 63.06 m2 |
| Cena bez DPH | - |
| Cena s DPH | - |
| Stav | predaný |
| Číslo | Názov | Plocha m2 |
|---|---|---|
| 1 | Chodba | 2.98 |
| 2 | WC | 1.78 |
| 3 | Kúpelňa | 3.30 |
| 4 | Kuchyňa | 6.79 |
| 5 | Obývacia izba | 25.15 |
| 6 | Terasa | 23.06 |
| Spolu | 63.06 |
Ušetrite až 1500 € - k tomuto bytu je možné zakúpiť garážové státie za zvýhodnenú cenu:
| Byt + garážové státie | ||
|---|---|---|
| Cena bez DPH | - | |
| Cena s DPH | - | |